Planning green light for new Cemetery
4 September 2024
Members of Derry City and Strabane District Council’s Planning Committee have approved full planning permission for the construction of a Municipal Cemetery at 64, Mullenan Road in Derry.
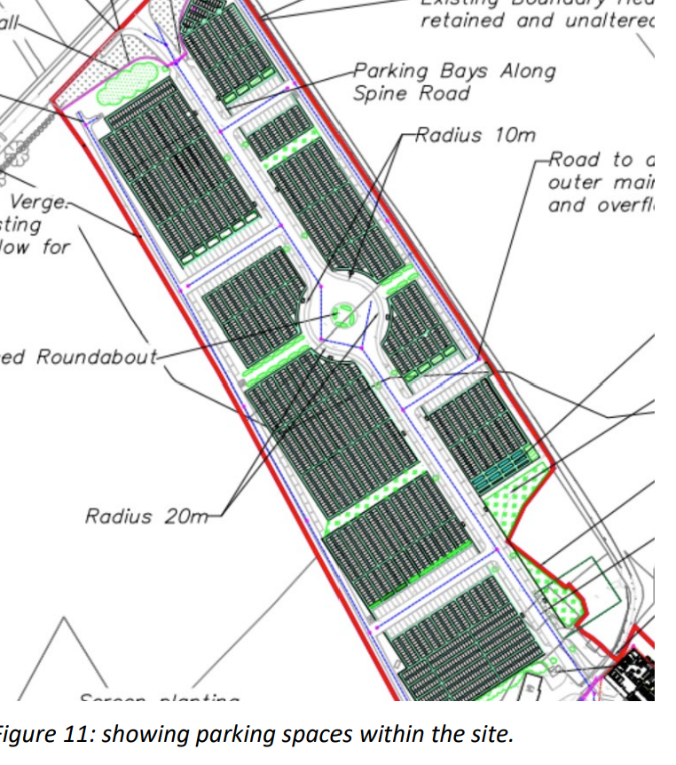
The development of this new strategic cemetery on the West Bank area of the city will see the creation of burial space for approximately 4,000 plots and include repositories for ashes and a Memorial Garden. The application includes plans to convert an existing dwelling to a reception and office administration building; the removal of existing outbuildings, the creation of a Memorial Service building with public toilets, a vehicle shed, storage shed and service yard. Included as part of the plans are provisions for car parking as well as associated landscaping and drainage works that include attenuation ponds.
Members attending the meeting were informed that traffic will access the site from the Mullenan Road via a new gated and walled entrance while a footway link will be made to Balloughry Road connecting pedestrians and cyclists using “The Line” greenway.
The need for a Strategic Cemetery was discussed including details of how the assessment of alternative sites was carried out and how Council has engaged in a site selection process for almost 10 years. Having considered a range of competing site suitability criteria including ground conditions, site acquisition costs, environmental issues and finding a site large enough to accommodate the city and district needs in the longer term, the site at Mullenan road best fulfilled the criteria.
Welcoming the decision to approve the planning application, Planning Committee chairperson Cllr Fergal Leonard said this was a major step forward for Council.
He said: “The provision of burial space is a statutory requirement for Council and this significantly important strategic project has been progressing at pace. I am delighted that we have reached this important milestone so we can move on to the next stage of the process that will see us tendering for contractors so that work can start as soon as possible. This new cemetery will allow for a minimum of 20 years burial capacity with the potential for further expansion on to adjoining lands. The City Cemetery currently has more than 77,000 people buried with burials in existing plots expected to continue well into the future while the recent extension at Kildrum will facilitate new grave burials in the interim until the new facility at Mullenan Road is complete.”
It is anticipated the works will commence in early 2025 with the first interments expected towards the end of the year.
To view the application in full visit – https://meetings.derrycityandstrabanedistrict.com/documents/s48006/Appendix%202%20-%204th%20Sept%202024.pdf

