Works commence at Stradowen Drive Greenway project
19 July 2024

Derry City and Strabane District Council has confirmed the appointment of a contractor to deliver the Stradowen Drive Greenway project.
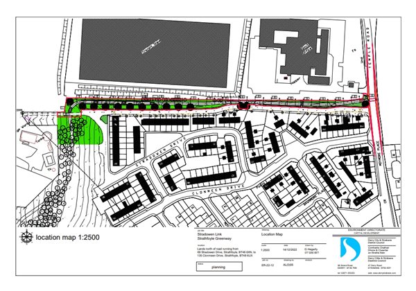
Adman Civils have been awarded the contract to deliver the 375m, shared-used greenway that will connect the Strathfoyle Greenway to the Maydown Greenway, via Stradowen Drive.
Works will include the delivery of a new asphalt surfaced greenway along with lighting, fencing and landscaping, with works expected to commence this week.
Construction activity will continue over the summer and autumn months, with an anticipated completion date of early December, subject to favourable weather conditions. Whilst residents are advised to expect some disruption during the works period, every effort is being made to keep it to a minimum.
Mayor of Derry City and Strabane District Council, Cllr. Lilian Seenoi Barr, welcoming the start of the works, said: “I am delighted that work on this project will commence imminently and once completed, will play a pivotal role in sustainably connecting our communities whilst better facilitating active travel transport modes such as cycling, wheeling and walking. Expanding our fantastic greenway network and encouraging active travel is a key element of Council’s Strategic Growth Plan, and this project further demonstrates how we can achieve that vision with health and wellbeing to the fore.”
The greenway is being developed by Derry City and Strabane District Council in partnership with the UK Government.